Le frêne - Village de gîtes Le Serre de Pierre
Capacité : 6 à 8 personnes
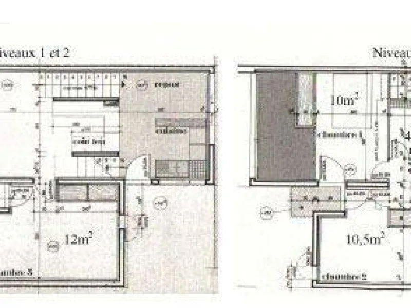
Surface : 80 m²
Nombre de chambres : 3
Chambre 1 avec 1 Lit double (160cm)
Chambre 2 avec 1 Lit double (160cm)
Chambre 3 avec 2 Lits simples (90cm)
Ce gîte est indépendant, à proximité immédiate des autres locations sans vis à vis. Il a un joli volume et une architecture originale sur plusieurs niveaux. La cuisine est séparée du salon par quelques marches d'escalier où vous avez un cheminée insert (bois gratuit) et un canapé convertible. Au niveau inférieur, vous avez une chambre avec un lit 160 et au niveau supérieur, une chambre avec 2 lits une personne et une chambre avec une ouverture sur le salon avec un lit 160, une salle de bains, le WC.
ÉQUIPEMENTS :
Barbecue Salon de jardin Lave-vaisselle TV écran plat Micro-onde Bouilloire Congélateur Four aspirateur
Grille-pain cocotte-minute Cafetière filtre + cafetière à doses Douche à l'italienne Sèche-cheveux
ÉQUIPEMENTS COMMUNS AU VILLAGE DE GÎTES :
Piscine couverte (9m x 4m - 1,40m de profondeur) avec bains de soleil ouverte de mai à septembre
Table de ping-pong
Buanderie avec 3 lave-linge
Animaux : Autorisés (gratuit avec caution)
Internet gratuit
Cheminée
Climatisation
Équipement bébé sur demande (lit bébé et chaise haute)
PRESTATIONS :
Location draps 1 personne (8.00 € pour le séjour)
Location draps lit 2 personnes (10.00 € pour le séjour)
Location linge toilette (5.00€ pour les petites serviettes – 8.00€ pour les draps de bain)
Option ménage (90€ pour le séjour)
À 2mn restaurant "La Cigale et la Fourchette", pain, sentiers de randonnée, office de tourisme,
10mn petits commerces,
15mn grands magasins, 10mn village médiéval de St Montan "Village de Caractère",
20mn Ferme aux Crocodiles de Pierrelatte,
20mn Montélimar,
25mn Vallon Pont d'Arc, Gorges de l’Ardèche et Grotte Chauvet 2,
1h30 Avignon,
2h00 Lyon/Marseille,
2h00 mer...
Surface : 80 m²
Nombre de chambres : 3
Chambre 1 avec 1 Lit double (160cm)
Chambre 2 avec 1 Lit double (160cm)
Chambre 3 avec 2 Lits simples (90cm)
Ce gîte est indépendant, à proximité immédiate des autres locations sans vis à vis. Il a un joli volume et une architecture originale sur plusieurs niveaux. La cuisine est séparée du salon par quelques marches d'escalier où vous avez un cheminée insert (bois gratuit) et un canapé convertible. Au niveau inférieur, vous avez une chambre avec un lit 160 et au niveau supérieur, une chambre avec 2 lits une personne et une chambre avec une ouverture sur le salon avec un lit 160, une salle de bains, le WC.
ÉQUIPEMENTS :
Barbecue Salon de jardin Lave-vaisselle TV écran plat Micro-onde Bouilloire Congélateur Four aspirateur
Grille-pain cocotte-minute Cafetière filtre + cafetière à doses Douche à l'italienne Sèche-cheveux
ÉQUIPEMENTS COMMUNS AU VILLAGE DE GÎTES :
Piscine couverte (9m x 4m - 1,40m de profondeur) avec bains de soleil ouverte de mai à septembre
Table de ping-pong
Buanderie avec 3 lave-linge
Animaux : Autorisés (gratuit avec caution)
Internet gratuit
Cheminée
Climatisation
Équipement bébé sur demande (lit bébé et chaise haute)
PRESTATIONS :
Location draps 1 personne (8.00 € pour le séjour)
Location draps lit 2 personnes (10.00 € pour le séjour)
Location linge toilette (5.00€ pour les petites serviettes – 8.00€ pour les draps de bain)
Option ménage (90€ pour le séjour)
À 2mn restaurant "La Cigale et la Fourchette", pain, sentiers de randonnée, office de tourisme,
10mn petits commerces,
15mn grands magasins, 10mn village médiéval de St Montan "Village de Caractère",
20mn Ferme aux Crocodiles de Pierrelatte,
20mn Montélimar,
25mn Vallon Pont d'Arc, Gorges de l’Ardèche et Grotte Chauvet 2,
1h30 Avignon,
2h00 Lyon/Marseille,
2h00 mer...
Cet établissement est Accueil Vélo et propose des services spécifiques envers les cyclistes.
Contact par mail
* Champs obligatoires
Signaler un problème avec cet établissement
* Champs obligatoires